Wydajemy krocie na designerskie meble i najnowsze gadżety. A czy sprawdziłeś, czy 50-letnia instalacja elektryczna w ścianach wytrzyma obciążenie nowej suszarki bębnowej? Ustalmy właściwe priorytety przed przystąpieniem do remontu!
Przebudowa mieszkania to nie tylko kwestia estetyki. To także poprawa funkcjonalności i komfortu. Dobrze zaplanowana adaptacja przestrzeni może znacząco podnieść jakość życia. Pamiętaj jednak, że liczy się nie tylko efekt końcowy, ale i legalność przeprowadzonych zmian.

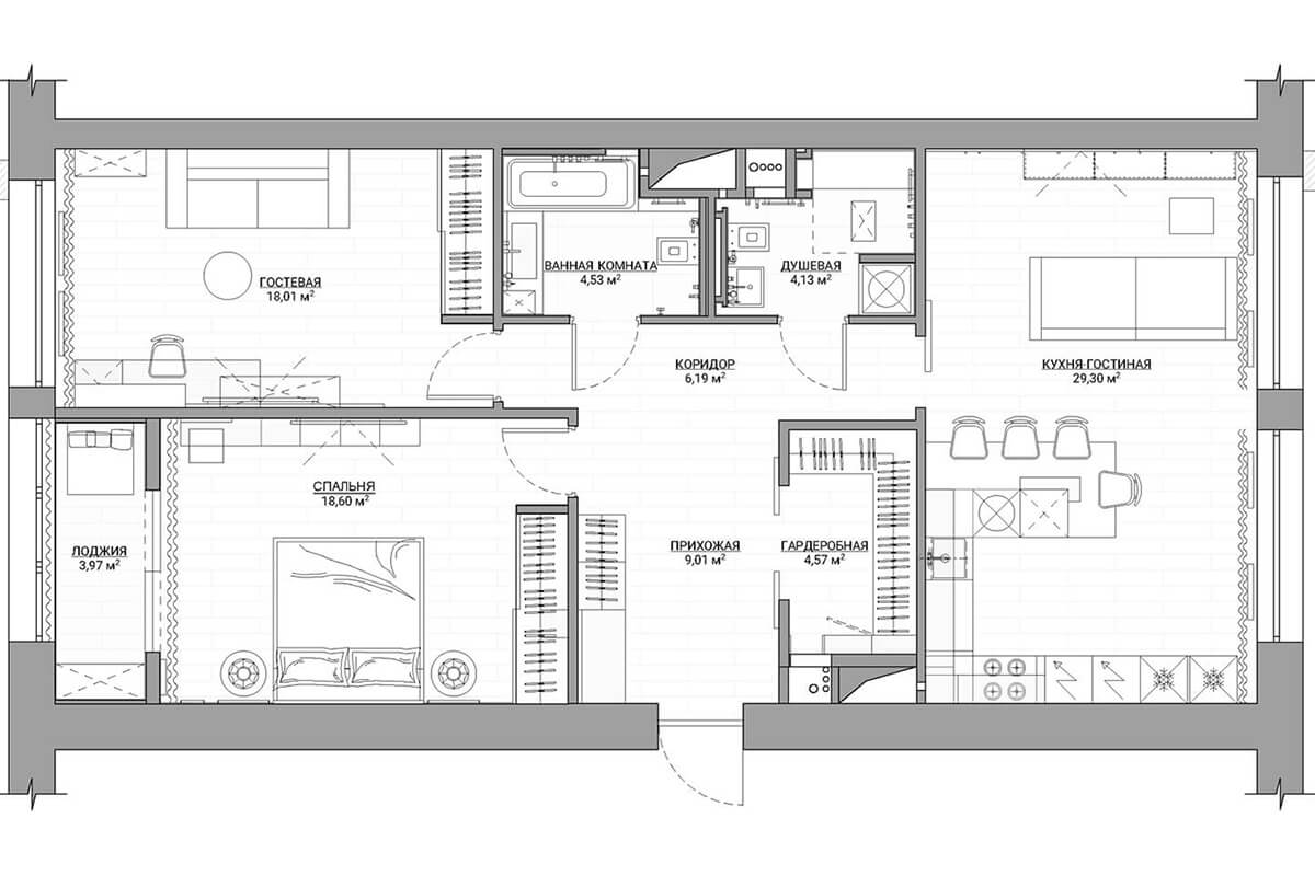
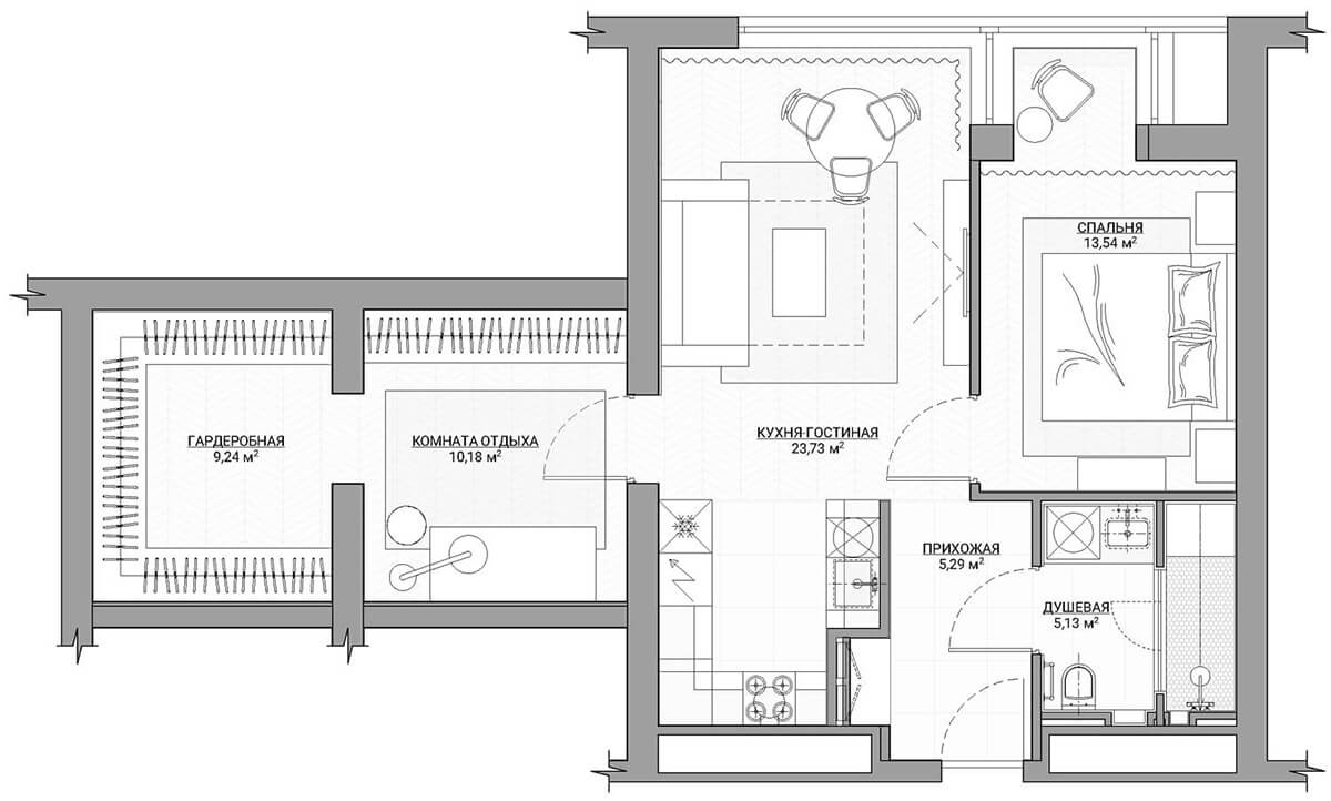
Udane przebudowy mieszkań w 2026 roku, to te, które łączą ergonomię z indywidualnym stylem. Wiele mieszkań w nowych budynkach oferuje otwarte przestrzenie. Daje to spore możliwości aranżacji wnętrz. Jednak nie zawsze oznacza to brak ograniczeń. Większość mieszkań ma już jakieś ściany działowe. Zmiana ich układu wymaga odpowiednich pozwoleń i dokumentacji przebudowy.

Adaptacja przestrzeni 2026 pozwala dostosować mieszkanie do Twoich potrzeb i preferencji. Chcesz mieć kuchnię otwartą na salon? A może marzysz o przestronnej garderobie? Przebudowa to szansa na realizację tych marzeń. Pamiętaj jednak o formalnościach. Nie lekceważ ich. Samowolne zmiany mogą skutkować problemami.

Po Co Przebudowa Nowego Mieszkania?
Mieszkania w nowych budynkach często wydają się nowoczesne i wygodne. Dlaczego więc właściciele decydują się na przebudowę mieszkania? Powodów jest kilka:
- Niedopasowanie do potrzeb: Standardowe układy nie zawsze spełniają oczekiwania. Komuś zależy na dużej kuchni z wyspą, innemu na oddzielnym gabinecie.
- Poprawa funkcjonalności: Deweloperzy nie zawsze optymalnie wykorzystują przestrzeń. Małe łazienki, niewygodne ciągi komunikacyjne – to można poprawić.
- Podniesienie wartości: Dobrze zaprojektowana i wykonana przebudowa podnosi wartość nieruchomości. Szczególnie dotyczy to apartamentów.

Przebudowa mieszkania to inwestycja w komfort i potencjalny wzrost wartości nieruchomości. Dobrze przemyślana aranżacja wnętrz może zdziałać cuda. Ale pamiętaj, „Twój pokój. Twoje zasady.” oznaczają także przestrzeganie przepisów.

Od Czego Zacząć: Instrukcja Krok po Kroku
Przebudowa mieszkania musi być zgodna z prawem budowlanym. Konieczne jest uzyskanie odpowiednich pozwoleń. Procedura może trwać kilka tygodni. Dlatego warto zacząć jak najwcześniej po otrzymaniu kluczy.
Kolejność Działań:
- Zdobycie dokumentacji: Uzyskaj aktualny wypis z rejestru gruntów i rzut lokalu.
- Projekt przebudowy: Zatrudnij architekta z uprawnieniami.
- Zgłoszenie lub pozwolenie: Zgłoś planowane prace w starostwie lub urzędzie miasta (zależnie od zakresu). W niektórych przypadkach wymagane jest uzyskanie pozwolenia na budowę.
- Prace budowlane: Realizuj adaptację przestrzeni 2026 zgodnie z projektem i przepisami.
- Zakończenie prac: Zawiadom o zakończeniu robót budowlanych.
- Aktualizacja dokumentacji: Uzyskaj nowy wypis z rejestru gruntów z uwzględnionymi zmianami.

Każdy etap jest istotny. Nie pomijaj żadnego kroku. Unikniesz problemów w przyszłości. Zadbaj o kompletną dokumentację przebudowy.

Z mojego doświadczenia wynika, że najlepszym sposobem na uniknięcie problemów z urzędami jest nawiązanie kontaktu z urzędnikiem odpowiedzialnym za Twoją dzielnicę jeszcze przed rozpoczęciem projektowania. Wyjaśnij swoje plany i zapytaj o ewentualne ograniczenia. To oszczędzi Ci nerwów i poprawek w projekcie.

Uzgodnienie przebudowy mieszkania to odpowiedzialny proces. Jest on niezbędny dla Twojego spokoju i bezpieczeństwa.

Przydatne Porady
Szczegółowy Projekt to Podstawa
Opracuj szczegółowy plan przyszłego wnętrza. Powinien uwzględniać wszystkie aspekty.
- Rozmieszczenie mebli i sprzętów: Ważne dla umiejscowienia gniazdek i włączników.
- Dokładne wymiary: Dotyczy mebli, ścianek działowych i otworów.
- Scenariusze oświetlenia: Dla różnych stref mieszkania. Uwzględnij rozmieszczenie, gabaryty i system podłączenia lamp.
- Ukryte instalacje: Ważne przy demontażu ścianek i podłączaniu nietypowych urządzeń.

Im więcej szczegółów przewidzisz, tym mniej niespodzianek podczas remontu. Zaoszczędzisz czas i pieniądze. Nie zapomnij o ergonomii. Z moich testów wynika, że wysokość blatu kuchennego powinna być dopasowana do wzrostu użytkownika. Standardowa wysokość 85 cm jest często niewystarczająca. Dla osób powyżej 175 cm wzrostu, blat powinien mieć co najmniej 90 cm.
Zatwierdź Projekt Przed Rozpoczęciem Prac
Nie zaczynaj prac budowlanych bez oficjalnego pozwolenia. Niektóre firmy proponują szybki start. Argumentują to oszczędnością czasu. To ryzykowne. Może prowadzić do strat finansowych i opóźnień. Przykładowo, podczas prac zdarzy się awaria. Przebudowa mieszkania nie jest jeszcze zalegalizowana. To oznacza samowolę budowlaną. Może to skutkować nakazem przywrócenia stanu pierwotnego, karami finansowymi i procesami sądowymi.


Rekomendacje Ekspertów
Eksperci zalecają zwrócenie uwagi na akustykę. Szczególnie przy łączeniu kuchni z salonem. Zadbaj o materiały dźwiękochłonne. Podniosą komfort życia domowników. Wybieraj materiały ekologiczne. To ważne dla zdrowia i bezpieczeństwa. Zwracaj uwagę na certyfikaty jakości.
Pamiętaj, że standardowa warstwa tynku potrzebuje około 1 kg materiału na 1 m² na każdy 1 mm grubości. Wybieraj tynki gipsowe. Zapewniają lepszą izolację termiczną i akustyczną niż tynki cementowo-wapienne.

Z moich badań wynika, że łączenie różnych rodzajów podłóg w otwartej przestrzeni (np. płytki w kuchni i parkiet w salonie) wizualnie dzieli przestrzeń i poprawia akustykę. Ważne jest, aby różnica poziomów między podłogami była minimalna (do 2 mm), aby uniknąć potykania się.

Kontroluj Przebieg Prac
- Regularne wizyty na budowie: Rozmawiaj z kierownikiem budowy. Upewnij się, że wszystko jest zgodne z projektem i normami budowlanymi.
- Jakość materiałów: Sprawdzaj, czy są zgodne ze specyfikacją.
- Dokumentacja: Rób zdjęcia i nagrywaj filmy z kolejnych etapów. Będą dowodem w razie sporów.
Jeśli nie masz pewności co do swoich umiejętności, zatrudnij niezależnego inspektora nadzoru. Będzie kontrolował postęp prac i wykrywał ewentualne nieprawidłowości.

Uważaj na firmy remontowe, które obiecują „załatwić” wszystkie formalności za Ciebie. Często kończy się to na samowoli budowlanej i problemach z urzędami. Zawsze wymagaj od wykonawcy przedstawienia aktualnych uprawnień budowlanych.

Przebudowa mieszkania w nowym budownictwie pozwala stworzyć przestrzeń, która odpowiada Twoim potrzebom. Zleć to zadanie profesjonalistom. Oni zrobią wszystko zgodnie z prawem i zasadami sztuki budowlanej. „Twoje zasady” w urządzaniu wnętrz, ale „nasze newsy” o tym, jak to zrobić bezpiecznie.
Koszty Przebudowy: Orientacyjne Ceny
Koszt przebudowy mieszkania zależy od wielu czynników. To m.in. złożoność projektu, metraż, ceny materiałów i robocizny. Dokładną cenę poznasz po opracowaniu projektu. Poniżej znajdziesz orientacyjne ceny niektórych usług:
| Usługa | Koszt (PLN) | Opis |
|---|---|---|
| Projekt przebudowy | Od 3000 | Opracowanie projektu zgodnego z normami i przepisami. |
| Zgłoszenie przebudowy (bez pozwolenia) | Od 500 | Przygotowanie i złożenie dokumentacji zgłoszeniowej. |
| Uzyskanie pozwolenia na budowę (jeśli wymagane) | Od 1500 | Przygotowanie i złożenie wniosku o pozwolenie. |
| Prace budowlane (robocizna) | Od 800 za m2 | Koszt robocizny zależy od zakresu prac. |
| Nadzór budowlany (jeśli wymagany) | Od 500 za dzień | Kontrola zgodności prac z projektem i przepisami. |
Pamiętaj, że to tylko orientacyjne ceny. Mogą się różnić w zależności od regionu i firmy. Zawsze porównuj oferty kilku wykonawców. Sprawdzaj ich referencje.
Unikaj najtańszych ofert. Często idą one w parze z niską jakością wykonania i problemami w przyszłości. Wybieraj firmy z doświadczeniem i pozytywnymi opiniami.
Pamiętaj, że adaptacja przestrzeni 2026, musi być przeprowadzona z należytą starannością i zgodnie z obowiązującymi przepisami. Zapewni to bezpieczeństwo i komfort użytkowania Twojego mieszkania przez długie lata.
Krytyczna Inspekcja Ostrzega: Nigdy nie rozpoczynaj prac wyburzeniowych bez dokładnego sprawdzenia, czy ściana, którą zamierzasz usunąć, nie jest ścianą nośną. Naruszenie konstrukcji budynku może prowadzić do katastrofy budowlanej i poważnych konsekwencji prawnych. Zawsze konsultuj się z konstruktorem!
Zawsze myślałem, że remont to tylko kwestia estetyki, a tu proszę, bezpieczeństwo najważniejsze. Dobrze wiedzieć. 🤔
O kurczę, właśnie jestem w trakcie remontu i instalacja elektryczna… no cóż, mam o czym myśleć 😬. Znajoma poradziła, żeby to sprawdzić.