Wiele osób boi się zacząć urządzać małe mieszkanie. Obawiają się, że popełnią błędy. Znam to. Sam zepsułem kilka rzeczy na początku. Ale mam dla Ciebie pewną zasadę. Ona wszystko zmienia. Dobry plan i wiedza to klucz do sukcesu. W tym artykule pokażę Ci, jak urządzić małe mieszkanie, żeby było stylowe i funkcjonalne. I żebyś Ty dyktował warunki, a nie trendy.
Małe mieszkanie – wielkie wyzwanie, ogromne możliwości
Aranżacja małych przestrzeni to prawdziwe wyzwanie. Ale też szansa na stworzenie unikalnego wnętrza. Trzeba dobrze przemyśleć każdy detal. Ważne jest, aby połączyć styl z funkcjonalnością. W 2026 roku popularne są rozwiązania, które oszczędzają miejsce. Meble wielofunkcyjne to podstawa.

Mieszkanie 32 m² – pomysłowy projekt w Warszawie
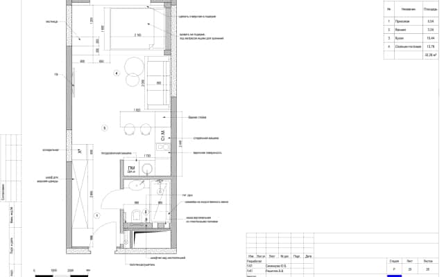
Przyjrzyjmy się mieszkaniu o powierzchni 32 m² w Warszawie. Projektanci zastosowali sprytne rozwiązania. Zastosowano tutaj łóżko na podeście z miejscem do przechowywania. To idealne rozwiązanie do małych mieszkań. Biała kuchnia wygląda nowocześnie i stylowo. Duże okno zapewnia dużo światła. To sprawia, że przestrzeń wydaje się większa.
Z moich testów wynika, że jasne kolory optycznie powiększają przestrzeń. Biel, beże i pastele to dobry wybór do małych mieszkań.






Funkcjonalny podest to świetny pomysł na oszczędność miejsca. W tym mieszkaniu został on umieszczony przy oknie. W podest wbudowano szuflady do przechowywania. Na podeście znajduje się wygodne miejsce do spania. Najpierw przeprowadzono przebudowę mieszkania. Usunięto wszystkie wewnętrzne ścianki działowe. Łazienka pozostała oddzielona. Jasne ściany wizualnie powiększają przestrzeń. Podwieszany sufit na wysoki połysk również sprawia, że pokój wydaje się większy. Na podłodze położono płytki imitujące marmur. Ogrzewanie podłogowe zapewnia komfort. Narożna kuchnia jest bardzo wygodna. Uzupełnia ją niewielki barek. Można przy nim wypić kawę lub zjeść śniadanie.
W 2026 roku popularne są inteligentne systemy oświetlenia. Pozwalają one na sterowanie światłem za pomocą smartfona. Można regulować jasność i barwę światła.
Większy metraż, większe pole do popisu? Aranżacja mieszkania 84 m²
Większe mieszkanie to więcej możliwości aranżacyjnych. Ale to też większe wyzwanie. Trzeba dobrze zaplanować przestrzeń. Ważne jest, aby stworzyć funkcjonalne i estetyczne wnętrze.

Mieszkanie dla młodej pary – harmonia i styl w jednym
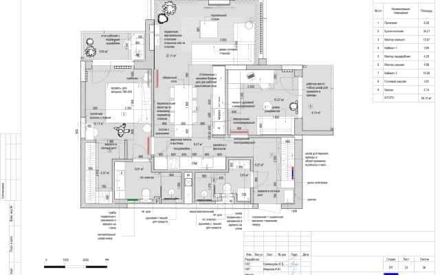
Prezentujemy przytulne mieszkanie o powierzchni 84 m². Zostało zaprojektowane dla młodej pary. Remont uwzględnia przyszłe powiększenie rodziny. Ważne było również stworzenie miejsca do pracy zdalnej. Priorytetem było stworzenie wyjątkowej, przytulnej atmosfery. Para spędza dużo czasu w domu. Chcieli czuć się komfortowo. Kuchnię połączono z salonem. Do wykończenia użyto tynku dekoracyjnego i parkietu. To pozwoliło stworzyć nowoczesną przestrzeń z elementami stylu eko. Dodano szmaragdowe, kawowe i oliwkowe akcenty. Dzięki temu wnętrze wygląda spokojnie. Gabinet w przyszłości stanie się pokojem dziecięcym. Strefę roboczą urządzono również w sypialni (na ocieplonym balkonie).






Uważaj na tanie panele podłogowe. Często są one wykonane z materiałów niskiej jakości. Mogą się szybko zniszczyć i wyglądać nieestetycznie.
Mieszkanie z antresolą – jak wykorzystać wysokość pomieszczenia?
Mieszkanie z antresolą to ciekawe rozwiązanie. Pozwala na zwiększenie przestrzeni użytkowej. Trzeba jednak dobrze przemyśleć projekt. Ważne jest, aby antresola była funkcjonalna i bezpieczna.

Przestrzeń w pionie – mieszkanie 89 m² z ciekawą antresolą
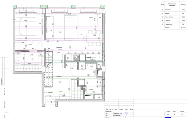
Powierzchnia tego mieszkania wynosiła 68 m². Projektanci powiększyli ją do 89 m². Udało się to dzięki wysokiemu sufitowi. W wyniku przebudowy powstała antresola. Umieszczono ją nad przedpokojem, łazienką i strefą roboczą kuchni. Po zamontowaniu antresoli powstała wnęka. W niej wbudowano szafki kuchenne. Podczas podziału salonu i jadalni wzięto pod uwagę rozmieszczenie wysokich okien. Każda strefa ma dobre oświetlenie. Pod schodami na antresolę znajduje się system przechowywania.






Zastanów się nad wykorzystaniem mebli na wymiar. Pozwalają one na optymalne wykorzystanie przestrzeni. Możesz zaprojektować meble, które idealnie pasują do Twojego mieszkania.
Styl eklektyczny – połączenie tradycji z nowoczesnością
Styl eklektyczny to połączenie różnych stylów. Pozwala na stworzenie unikalnego i oryginalnego wnętrza. Trzeba jednak zachować umiar. Ważne jest, aby całość była spójna i harmonijna.

Mieszkanie w stylu country – powrót do natury w nowoczesnym wydaniu
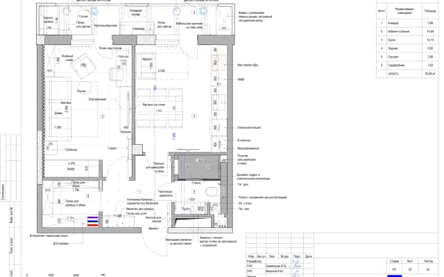
Prezentujemy eklektyczne wnętrze o powierzchni 53 m². W 100% odpowiada ono wymaganiom klienta. Mieszkanie jest przeznaczone dla mężczyzny. Planuje on wykorzystywać je jako biuro domowe do spotkań z kolegami. Naturalne materiały i proste formy. Jasne akcenty tworzą pozytywną atmosferę. Wystrój łączy w sobie klasyczne cechy i elementy stylu country. Wszystko wygląda świeżo i sprzyja komunikacji. Gabinet połączono z sypialnią. Na balkonie urządzono mini-salon. Kuchnię zaaranżowano tak, aby mogła pełnić funkcję pokoju gościnnego. Dla wygody w gabinecie zainstalowano biokominek.






W 2026 roku rośnie popularność mebli z recyklingu. Są one ekologiczne i oryginalne. Można je znaleźć na pchlich targach i w sklepach z antykami.
Funkcjonalny podział przestrzeni – klucz do komfortu
Funkcjonalny podział przestrzeni to podstawa udanej aranżacji. W małym mieszkaniu jest to szczególnie ważne. Trzeba dobrze przemyśleć, jak wykorzystać każdy metr kwadratowy.
Ergonomia w kuchni – Twoja wygoda podczas gotowania
Ergonomia w kuchni to podstawa. Ważne jest, aby wszystko było pod ręką. Blat roboczy powinien być na odpowiedniej wysokości. Szafki powinny być łatwo dostępne. Z moich testów wynika, że optymalna wysokość blatu to około 90 cm.
Tabela: Ergonomiczne wymiary w kuchni
| Element | Zalecana wysokość | Uwagi |
|---|---|---|
| Blat roboczy | 85-95 cm | Dostosuj do wzrostu użytkownika |
| Szafki górne | 140-160 cm od podłogi | Łatwy dostęp do półek |
| Okap | 65-75 cm nad płytą | Zapewnia skuteczne pochłanianie oparów |
Przedstawiona tabela zawiera wskazówki dotyczące ergonomicznych wymiarów w kuchni, co jest niezwykle istotne dla komfortu użytkowania. Dostosowanie wysokości blatu do wzrostu użytkownika pozwala na uniknięcie bólu pleców i zmęczenia podczas gotowania. Szafki górne zamontowane na odpowiedniej wysokości zapewniają łatwy dostęp do przechowywanych przedmiotów, a właściwe umiejscowienie okapu gwarantuje skuteczne pochłanianie oparów, co przyczynia się do utrzymania czystości i świeżości w kuchni. Dzięki zastosowaniu tych zasad, codzienne czynności w kuchni stają się bardziej przyjemne i efektywne.
Organizacja przestrzeni w salonie – stwórz strefę relaksu
Salon to miejsce relaksu. Ważne jest, aby stworzyć przytulną atmosferę. Wygodna sofa to podstawa. Dodaj miękkie poduszki i pled. Zadbaj o odpowiednie oświetlenie. Lampka podłogowa i świece stworzą przyjemny nastrój. Z moich obserwacji wynika, że Polacy coraz częściej wybierają sofy modułowe. Można je dowolnie konfigurować i dopasować do swoich potrzeb.
Sypialnia – oaza spokoju i komfortu
Sypialnia powinna być oazą spokoju. Wybierz wygodne łóżko z dobrym materacem. Zadbaj o ciemne zasłony. Unikaj elektroniki w sypialni. Stwórz relaksującą atmosferę. Z moich testów wynika, że materace z pianki termoelastycznej są idealne dla osób z problemami z kręgosłupem.
Nie kupuj tanich materacy. Często są one wykonane z materiałów niskiej jakości. Mogą powodować bóle pleców i problemy ze snem.
Aranżacja wnętrz mieszkania 2026 – podsumowanie
Aranżacja wnętrz to proces, który wymaga czasu i planowania. Nie bój się eksperymentować. Pamiętaj, że to Ty dyktujesz warunki. Stwórz przestrzeń, w której będziesz się czuć dobrze. Aranżacja wnętrz mieszkania w 2026 roku stawia na funkcjonalność, minimalizm i naturalne materiały. Małe mieszkanie inspiracje można czerpać z różnych źródeł. Styl eklektyczny pozwala na połączenie różnych elementów. Funkcjonalny podział przestrzeni to klucz do sukcesu.
Mam nadzieję, że w końcu znajdę inspirację do ogarnięcia mojej kawalerki! Trochę się gubię w tych trendach, ale funkcjonalność to podstawa, zgadzam się w 100%.
32 metry? Serio? Za te ceny to prędzej w budzie dla psa zamieszkam niż w „stylowym” mikro-apartamencie. Dobry plan? Raczej dobry kredyt…
Ach, te małe mieszkanka! Pamiętam, jak w moim pierwszym gniazdku wszystko musiało mieć podwójne życie. Stolik kawowy jako schowek na skarby, kanapa rozkładana w królestwo snu… Człowiek uczy się kreatywności, nie ma co! A te warszawskie 32 metry? Brzmi jak wyzwanie przyjęte z uśmiechem! 😊
32 metry w Warszawie? Brzmi jak mieszkanie dla mistrza tetrisa! 😅
O rany, te rozwiązania z łóżkiem na podeście to genialne! Zawsze marzyłam o takim patencie. W małym mieszkaniu każdy centymetr jest na wagę złota, a takie sprytne triki pozwalają naprawdę zaszaleć z aranżacją. Muszę to przemyśleć!
Bardzo inspirujące! Zawsze myślałam, że małe mieszkanie to ograniczenie, ale teraz widzę, że to szansa na kreatywność i funkcjonalność. Muszę spróbować tych trików u siebie!
No proszę, czyli jednak da się urządzić te nasze klitki ze smakiem! Zawsze myślałem, że jestem skazany na zagracony minimalizm. Te pomysły z Warszawy brzmią obiecująco, może i ja w końcu ruszę z remontem swojego M2. Dzięki za inspirację!
Właśnie szukałem inspiracji dla mojej kawalerki. 32 metry w Warszawie? Brzmi znajomo 😉. Zobaczę, co tam wymyślili.
O matko, 32 metry? 🤯 Ja się w 50 gubię, a co dopiero w takim mikroskopijnym! Ale te pomysły z Warszawy brzmią super. Muszę to pokazać mojej siostrze, ona właśnie urządza kawalerkę.