Tania przeróbka zawsze kosztuje trzy razy więcej. Najpierw płacisz za tanie materiały, potem za „fachowca”, a na końcu za skucie tego wszystkiego i zrobienie porządnie. Projekt kuchni z salonem to inwestycja na lata. Lepiej zrobić to raz a dobrze, niż ciągle poprawiać.
1. Zastosowanie narożnika do podziału stref
Powierzchnia pomieszczenia: 27,6 m²
Jeśli masz pomieszczenie o zbliżonym kształcie do kwadratu, staraj się go nie zagracać. Narożnik to świetny sposób na oddzielenie kuchni od salonu. Ustaw go tak, aby jego róg stanowił naturalną „ściankę działową”. Narożnik to sprytny sposób na aranżację kuchni z salonem. Działa jak mebel 2w1.

Uzupełnij narożnik fotelem i stolikiem kawowym. Stworzysz pełnowartościową strefę relaksu. To idealne miejsce na odpoczynek po ciężkim dniu. Pamiętaj, że to Ty decydujesz o charakterze swojej przestrzeni.

Taki układ jest idealny dla dużych rodzin. Każdy znajdzie tu miejsce dla siebie. Można wspólnie oglądać telewizję lub poczytać książkę w ciszy. Ważne jest, by przestrzeń odpowiadała potrzebom wszystkich domowników.

Nie zapomnij o odpowiednim oświetleniu. Każda strefa powinna mieć inne. W kuchni potrzebujesz jasnego światła do gotowania, a w salonie przytłumionego do relaksu. Wybierz lampy z regulacją natężenia światła, aby dopasować je do swoich potrzeb.

Zanim kupisz narożnik, sprawdź jego konstrukcję. Z moich testów wynika, że stelaż z drewna bukowego jest trwalszy niż z sosny. Zwróć też uwagę na gęstość pianki w siedzisku – im wyższa, tym dłużej zachowa swój kształt.
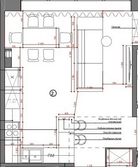
2. Podział na dwa „kwadraty”
Powierzchnia pomieszczenia: 16,4 m²
W przypadku długiej kuchni z salonem, podziel ją na dwa kwadraty. Ustaw meble wzdłuż ścian. Stwórz jedną linię z kanapy i zabudowy kuchennej. Aranżacja kuchni z salonem w małym mieszkaniu 2026 wymaga sprytnych rozwiązań. Liczy się każdy centymetr.

Stół z krzesłami umieść na środku. Przesuń go lekko w stronę jednej ze ścian. Dzięki temu zyskasz więcej przestrzeni do poruszania się. Eksperci zalecają minimum 90 cm wolnej przestrzeni do swobodnego przechodzenia. To podstawa ergonomii.

Użyj jasnych kolorów. Optycznie powiększą przestrzeń. Dodaj lustra. One również pomogą wizualnie powiększyć pomieszczenie. Pamiętaj, że to Ty tworzysz zasady w swoim pokoju.

Zwróć uwagę na przechowywanie. Wykorzystaj półki i szafki. Pomogą utrzymać porządek. Dzięki temu Twoja kuchnia z salonem będzie wyglądać schludnie. Szafki cargo to idealne rozwiązanie do przechowywania żywności.

Uważaj na tanie fronty meblowe z płyty MDF. Pod wpływem wilgoci mogą się odkształcać i pęcznieć. Wybieraj fronty lakierowane lub fornirowane – są bardziej odporne na wilgoć i uszkodzenia mechaniczne.
3. Rozmieszczenie mebli po obwodzie
Powierzchnia pomieszczenia: 16,6 m²
To klasyczne rozwiązanie dla prostokątnego pomieszczenia. Ustaw meble wzdłuż ścian. Kuchnia z salonem jest niewielka – tylko 16 metrów kwadratowych. Ważne jest, by dobrze zaplanować każdy element.

Przystaw prostokątny stół do ściany. Kuchnia powinna być w kształcie litery L. Strefę relaksu z telewizorem umieść blisko okna. Lodówkę postaw przy ścianie. W ten sposób efektywnie wykorzystasz przestrzeń. Takie ustawienie jest bardzo praktyczne.

Wybieraj meble wielofunkcyjne. Na przykład rozkładaną sofę. Pozwoli to zaoszczędzić miejsce. Stworzy dodatkowe miejsce do spania dla gości. To idealne rozwiązanie do małych mieszkań.

Nie zapomnij o tekstyliach. Zasłony, poduszki, dywan. Sprawią, że pokój będzie bardziej przytulny. Dodaj wyraziste akcenty. Na przykład obrazy lub kwiaty. To ożywi wnętrze.

W 2026 roku popularny jest styl minimalistyczny w aranżacji wnętrz. Charakteryzuje się prostotą, funkcjonalnością i stonowaną kolorystyką. Postaw na naturalne materiały i unikaj zbędnych dekoracji.
4. Wykorzystanie parapetu w strefie salonu
Powierzchnia pomieszczenia: 19,9 m²
Spraw, aby kuchnia z salonem była bardziej funkcjonalna. Wykorzystaj przestrzeń przy oknie. Umieść sofę i telewizor po bokach okna. Wykorzystaj niski parapet. Aranżacja kuchni z salonem to sztuka kompromisu między stylem a funkcjonalnością.

Ukryj instalacje. Część schowaj w szafce. Zorganizuj pod oknem leżankę. Wygodnie się na niej siedzi i leży. Powstanie przytulny kącik do relaksu. To idealne miejsce na popołudniową drzemkę.

Stół z krzesłami stanie się elementem oddzielającym strefy. Przesuń go w stronę kuchni. Stół dostaw do wyspy kuchennej. Stworzy to płynne przejście między strefami. To praktyczne i estetyczne rozwiązanie.

Użyj wiszących lamp. Dodadzą pomieszczeniu stylu. Umieść je nad stołem lub wyspą kuchenną. To efektowne oświetlenie strefowe, które podkreśli charakter wnętrza.

5. Ustawienie stref po przekątnej
Powierzchnia pomieszczenia: 13,8 m²
Masz mały i prostokątny pokój? I dwoje drzwi? Ustaw meble po przekątnej. To nietypowe rozwiązanie. Sprawdza się w małych przestrzeniach. Warto spróbować takiego układu.

Postaw sofę w jednym rogu. Naprzeciwko – stół z krzesłami. W innym rogu – meble kuchenne. Strefy będą się odbijać jak w lustrze. Na środku zostanie wolna przestrzeń. To optymalne rozwiązanie dla małych pomieszczeń.

Wybieraj jasne meble. Nie będą przytłaczać przestrzeni. Dodaj kolorowe poduszki. Dodadzą pomieszczeniu energii. To proste i skuteczne rozwiązanie.

Zamów meble na wymiar. Będą idealnie pasować do Twojego pomieszczenia. Uwzględnij wszystkie cechy Twojego pokoju. To droższe rozwiązanie, ale warte swojej ceny.

6. Rozmieszczenie mebli w dwóch rzędach
Powierzchnia pomieszczenia: 19,5 m²
W tym projekcie zastosowano nietypowe rozwiązanie. Meble ustawiono w dwóch rzędach. Meble kuchenne i sprzęt AGD zajęły długą ścianę. W drugiej linii zebrano stół z krzesłami i sofę.

Sofa stoi tyłem do stołu. W ten sposób zorganizowano strefę telewizyjną. Ekran znajduje się na przeciwległej ścianie. To ciekawe rozwiązanie do wydzielenia stref.

Użyj ażurowych ścianek działowych. Dodadzą stylu. Pomogą oddzielić przestrzeń. To nowoczesny i modny element wystroju wnętrz.

Dodaj rośliny. Sprawią, że pokój będzie świeższy. Postaw je na parapecie lub na półkach. Rośliny doniczkowe zawsze wyglądają dobrze. Zadbaj o odpowiednie nawilżenie powietrza.

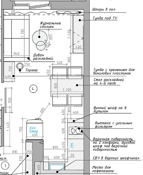
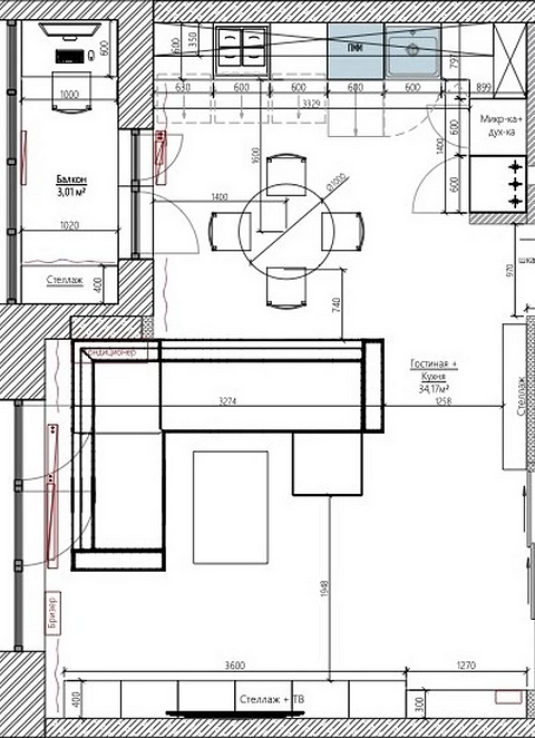
7. Wykorzystanie sofy jako przegrody
Powierzchnia pomieszczenia: 34,2 m²
W dużym pomieszczeniu użyj dużych mebli. W tej kuchni z salonem projektantka oddzieliła strefy. Użyła dużej sofy narożnej. Oddziela szerokie oparcie sofy. Przemyślana aranżacja kuchni z salonem to klucz do sukcesu.

Za oparciem umieszczono stół z krzesłami. Uzyskano funkcjonalny układ. Dwie strefy stały się oddzielne. To sprawia, że przestrzeń jest bardziej komfortowa.


Użyj różnych faktur. Na przykład drewno, metal, szkło. Sprawi to, że wnętrze będzie ciekawsze. Nie bój się eksperymentować. To Twoja przestrzeń, Twoje zasady.

8. Wydzielenie mini-kącika dla salonu
Powierzchnia pomieszczenia: 17,3 m²
W małym pomieszczeniu trudno wydzielić równe strefy. Zmniejsz kuchnię lub salon. Zależy to od Twoich priorytetów. Tutaj wybrano dużą kuchnię w kształcie litery G.

Na salon przeznaczono miejsce przy oknie. Postawiono sofę i mały stolik. Przy ścianie – szafka z kominkiem. I stół z krzesłami. To przytulny kącik.

Użyj lustrzanych frontów. Wizualnie powiększą kuchnię. I dodadzą jej stylu. To popularny trik w projektowaniu wnętrz. Oświetlenie strefowe jest tutaj kluczowe.

Zadbaj o dobrą wentylację. To ważne w kuchni z salonem. Aby zapachy nie rozchodziły się po całym pomieszczeniu. Zainstaluj wydajny okap.

9. Ustawienie stołu przy oknie
Powierzchnia pomieszczenia: 29,1 m²
Kwadratowe lub w kształcie litery G pomieszczenie podziel na trzy strefy. Kuchnia, salon i jadalnia. Stół postaw przy oknie. Sofa – tyłem do stołu. Liczy się spójna aranżacja kuchni z salonem.

Naprzeciwko – meble kuchenne z barkiem. Zamyka kuchnię z jednej strony. To wygodne i praktyczne rozwiązanie.

Użyj reflektorów. Pomogą wyodrębnić strefy. I stworzyć przytulną atmosferę. Szczególnie wieczorem. To inteligentny sposób na aranżację oświetlenia.

Zamów zasłony z lekkiej tkaniny. Przepuszczą dużo światła. Dodadzą pomieszczeniu lekkości. Stworzy to przyjemną atmosferę.

Przy planowaniu oświetlenia strefowego, zwróć uwagę na współczynnik oddawania barw (CRI) źródeł światła. Niski CRI (poniżej 80) może zniekształcać kolory potraw i mebli. Wybieraj żarówki i panele LED z CRI powyżej 90 – zapewnią naturalne i przyjemne oświetlenie.

„Inwestycja na lata”? Chyba w nerwy! Tanie przeróbki bolą, ale te „profesjonalne” projekty, gdzie każdy centymetr liczony jak złoto, to dopiero potrafią wyciągnąć kasę. Mój portfel chyba nie jest gotowy na taki „luksus poprawiania”.
O wow, kuchnia z salonem to moje marzenie! Zawsze chciałam mieć wyspę kuchenną, przy której mogłabym gotować i jednocześnie rozmawiać z przyjaciółmi! Tylko boję się, że wszystko będzie wyglądało na zagracone… Ale ten narożnik jako ścianka działowa to super pomysł! Muszę to przemyśleć! ✨
O kurczę, zawsze marzyłem o wyspie kuchennej! Tyle, że moja kuchnia z salonem to bardziej „salonik” z kuchnią… Chyba będę musiał zadowolić się barkiem. Ale i tak, dzięki za inspirację, może coś wykombinuję! 💪